Gå til: Plantegninger | Fasade | Kontaktskjema
209 – VILLBJØRN
Romslig hytte med store vindusflater gjør hytta både moderne og tradisjonell. Fungerer like godt som «sørlandshytte» som tradisjonell hytte på fjellet.
Med forbehold om at det kan være nødvendig med justeringer, det er en eldre hytte som vi ikke kan garantere oppfyller dagens tekniske krav.
TEKNISK DATA
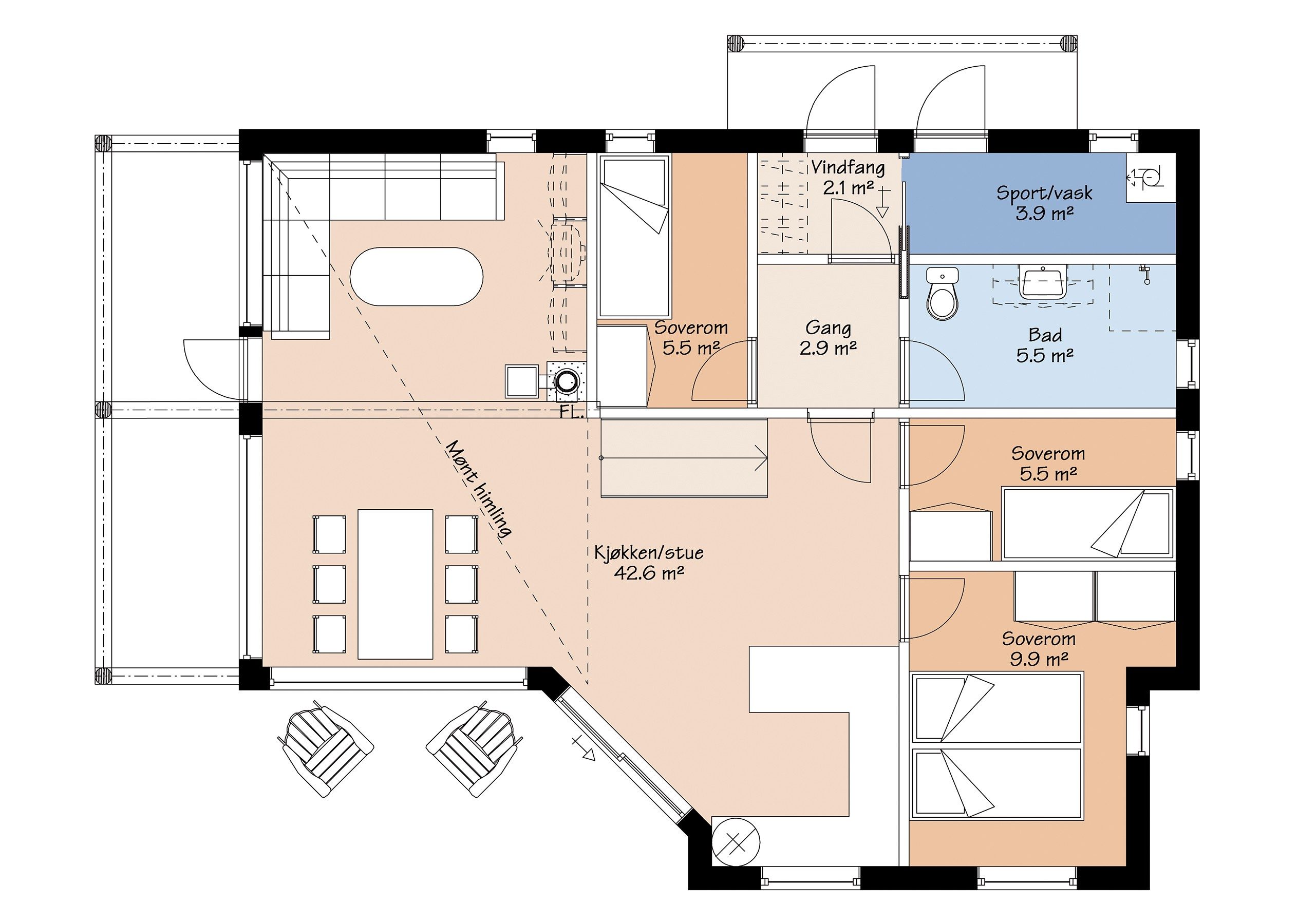
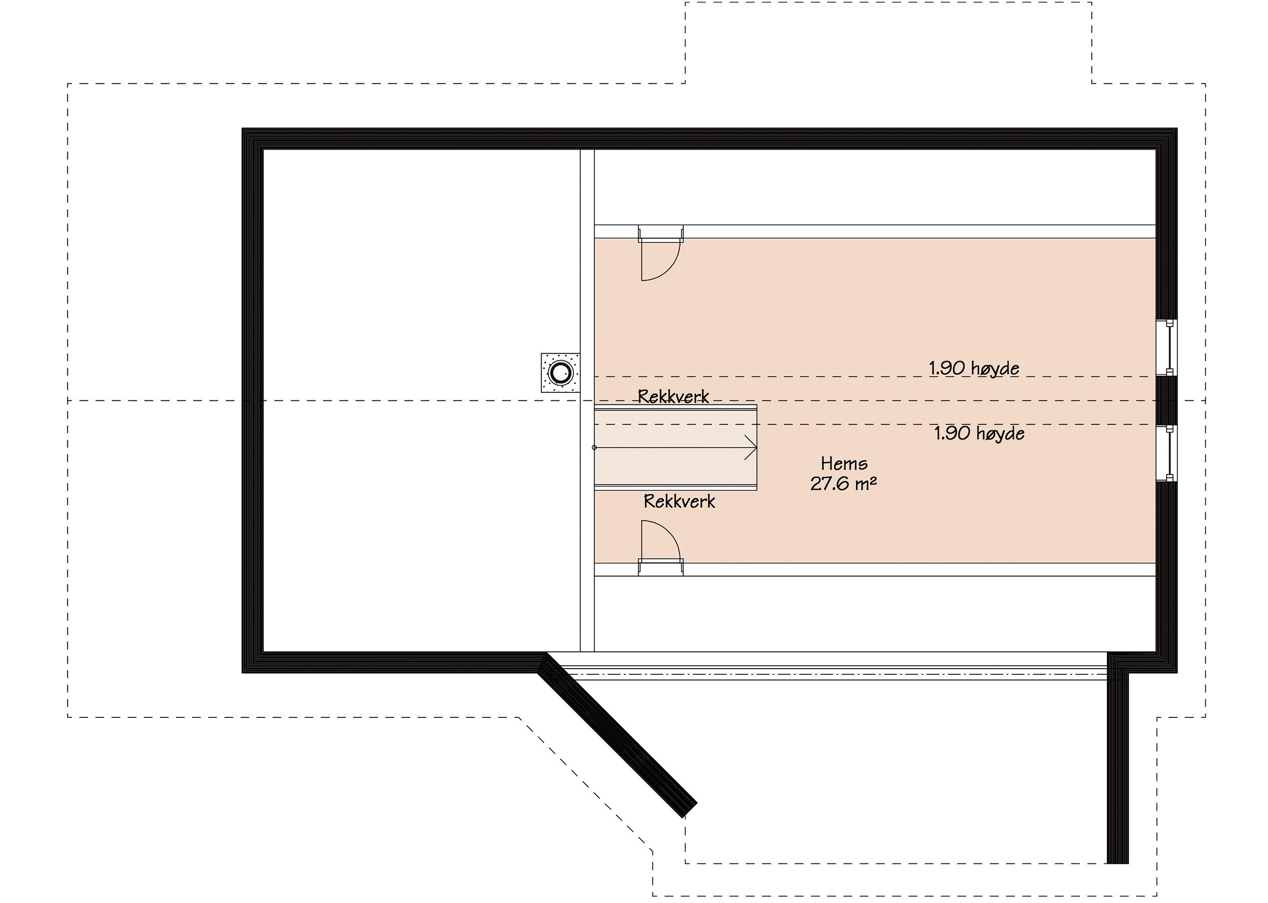
PLANTEGNINGER
ØNSKER DU MER INFORMASJON?
FYLL UT SKJEMAET, SÅ KONTAKTER VI DEG FOR EN HYGGELIG BOLIGPRAT
ARKITEKT
ALT KAN TILPASSES FOR Å IMØTEKOMME DERES ØNSKER OG BEHOV
Fordelene med å bygge et helt nytt hus, er at du kan få det akkurat slik som du vil. Trolig finner du en husmodell i vår katalog som kan passe, men kanskje ønsker du å tilpasse boligen etter egne ønsker og behov.
Vi vil gjøre vårt ytterste for at du skal bi fornøyd, og hjelper deg hele veien fra idé til ferdig bolig. Vi har fagkunnskap og gir gode råd for at du skal få bygget en bolig som passer deg helt perfekt.







